所在地 | 東京都世田谷区下馬2丁目 |
交通 |
田園都市線 三軒茶屋駅 徒歩11分 |
賃料 | 203,000円 |
管理費 | 10,000円 |
敷金 | 1ヶ月 |
礼金 | - |
保証金 | - |
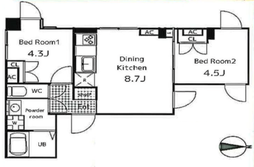
専有面積 | 40.77㎡ |
間取り | 2DK |

いつでも準備はできているから。お迎えなんていつでもいいよ。
チャリで向かったからいきなり到着、いい季節。電動自転車は早すぎる。景色を無視しちゃうみたい。
良いコンクリートが出ているんじゃないかい。雨が降りそうな天気は僕っぽいな思います。(晴れが良かったです)
オートロックを抜ければ、いい感じじゃないか、窓が開いているところが今回のお部屋。お出迎えに顔を覗かせるあなたが見えていますよ
ご覧の通り角部屋、なんなら孤立しているお部屋。友達が来るから寂しくないね。
石、コンクリ、木 時々鉄。そんなところでしょう。欲望は剥き出しに、素直に生きたらいいじゃん
あら、そう、靴箱と面と向かったのは久しぶりかな。大きいなあ。ブーツでも大きい靴も、飾っても。
玄関の範囲はどこまででも、自分で決めれるって時として酷ね。玄関マットでもひいてバシッと範囲、決めちゃいなよ。
入って右側にリビング、吸い込まれそうですねえ、奥に進みたくなる感じ?誘われている気がするのは私だけでしょうか。
ライティングレールと細長本棚???細くてすっぽり、早く埋めたいなあ
あれ、外側のコンクリが内側にも顔を出してるね。さりげないデザイン??原理はおしゃれ
キッチンもぬかりなく、3口コンロだ。マルチタスクできる人はさあ、同時にいっぱい作ればいいじゃん。
角部屋だなあ。クローゼットいい位置。やっぱりチラッと見えるコンクリっていいよね。
覗けばお隣は平屋でしてねえ、素晴らしい平屋。緑いっぱい平屋。東京の平屋、ふむ。素晴らしい。都会??忘れる景色ですな。
反対側はさっきのオートロックが見えるね。一緒に来ていたDさん、門扉の前にいてね、今お迎えに行きますからね。
友人のお迎えはここから顔を覗かせるだけ。カメラ付きインターホンもついてるけどね、ほら、情緒とかそういうやつですよ。
玄関入って左側にもう一部屋、ベッド置くかなあ、書斎でも。クローゼットはこちらにも。平屋の緑はどこからでも僕たちを迎えてくれるのだよ。
さっきの部屋は一番右の扉ね、それ以外は水回り。お写真添えときます。
あ、そういえば宅配ボックスもありましたよ。
こんなところで帰りますね、早い早い自転車で。散歩は好きなんです。ただねえ、自転車はねえ。「移動」って感じがしちゃうなあ。散歩はゆとり感じれるから好きさ。僕も大人になりましたね。友達が来たのを窓から眺める、、、ゆっくり立ち上がって窓を開けて声をかける。そんなゆとりを感じて生きていきたい!!
皆さんのゆとり話、お聞かせください。
ほらもう中目黒についちゃいそうです。それではまた、
ご興味をお持ちの方は、お問い合わせフォームからご連絡ください。
(担当:かれ)

所在地 | 東京都世田谷区下馬2丁目 |
交通 | 田園都市線 三軒茶屋駅 徒歩11分 |
賃料 | 203,000円 |
管理費 | 10,000円 |
敷金 | 1ヶ月 |
礼金 | - |
保証金 | - |
専有面積 | 40.77㎡ |
間取り | 2DK |
建物構造 | 鉄筋コンクリート造4階建 |
所在階 | 2階 |
築年 | 2020年11月 |
設備 |
モニター付きオートロック、ウォシュレット、浴室乾燥機、エアコン3基、インターネット無料、宅配ボックス、敷地内ゴミ置き場、ディンプルキー、室内物干し(歩スクリーン)、駐輪場:無 |
備考 |
更新料:新賃料の1ヶ月分、火災保険:要加入(23,600円)、保証会社:要加入(初回賃料等の50% / 引落手数料:550円月額)、鍵交換費用:33,000円、1フロア2世帯、解約予告2ヶ月前 |
取引態様 | 媒介 |
情報修正日時 | 2025年10月20日 |
情報更新予定日 |
コメントをお書きください